Wettbewerb Teilhabezentrum, Um- und Neubau für die Stiftung Carolinenheim
Ort: Apolda
Bauherr: Walter GbR (Kapellendorf)
Besonderheit: Einzeldenkmal, Wettbewerbsteilnahme
Herstellungskosten: 2.056.400, – € (Kostenschätzung)
Größe: 3.292 m³ (BRI)
Fertigstellung: Dezember 2019 (Wettbewerbseinreichung)
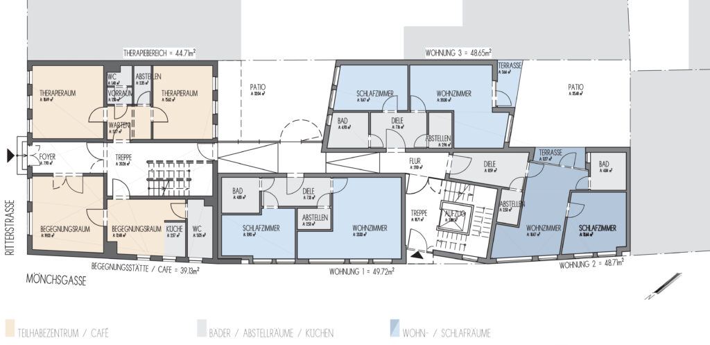
Baubeschreibung
Die Stiftung Carolinenheim Apolda plant eine Sozialeinrichtung mit Heilpädagogischer Pflege, Tagesbereich für Senioren und Teilhabezentrum im Zentrum der Kreisstadt Apolda.
Im Auftrag der Walter GbR (Kapellendorf) wurde die RJ Planungsbüro GmbH & Co. KG um einen Entwurf für die Realisierung der Bauaufgabe auf dem Grundstück Ritterstraße 35/Mönchsgasse 8 in Apolda gebeten.
Der vorliegende Entwurf orientiert sich am Raumprogramm des potentiellen Nutzers (Variante 1). Abweichend von diesem wurde zusätzlich eine weitere Nutzungsvariante mit Begegnungsstätte/Bürgercafé im Erdgeschoß und 2-Raum-Appartements auf allen Ebenenentwickelt (Variante 2).
Der vorliegende Entwurf orientiert sich am Raumprogramm des potentiellen Nutzers (Variante 1). Abweichend von diesem wurde zusätzlich eine weitere Nutzungsvariante mit Begegnungsstätte/Bürgercafé im Erdgeschoß und 2-Raum-Appartements auf allen Ebenenentwickelt (Variante 2).
Mit dem Entwurf wird eine Neuordnung der Baumassen unter Maßgabe einer Optimierung der Belichtungsverhältnisse zukünftiger Nutzungen sowie einer quartierverträglichen Verdichtung vorgenommen.
Das Gebäude Ritterstraße 35 wird bei weitestgehendem Erhalt des konstruktiven Gefüges, der inneren Erschließung und der Fassadengliederung denkmalgerecht saniert. Das Mansarddach wird auf der Hofseite um zwei nach historischem Vorbild rekonstruierte Dachgauben ergänzt. Die innenhofbegleitenden Nebengebäude und das giebelständig auf der Grundstücksgrenze zu Flurstück 321/2 errichtete Gebäude Mönchsgasse 8 werden zu Gunsten einer Neubebauung zurückgebaut. Erhaltenswürdige Bauteile wie Tor- und Türelemente sollen gesichert und später behutsam in den Neubau integriert werden. Entwurfsprämissen sind der Erhalt der kleinteiligen Blockrandbebauung durch ablesbare Einzelbaukörper in Giebelstellung und niedrigere Verbindungsbauwerke bei Erhalt der historischen Gebäudefluchten sowie eine bedarfsgerechte Neuordnung der inneren und äußeren Erschließung.
Das Gebäude Ritterstraße 35 wird bei weitestgehendem Erhalt des konstruktiven Gefüges, der inneren Erschließung und der Fassadengliederung denkmalgerecht saniert. Das Mansarddach wird auf der Hofseite um zwei nach historischem Vorbild rekonstruierte Dachgauben ergänzt. Die innenhofbegleitenden Nebengebäude und das giebelständig auf der Grundstücksgrenze zu Flurstück 321/2 errichtete Gebäude Mönchsgasse 8 werden zu Gunsten einer Neubebauung zurückgebaut. Erhaltenswürdige Bauteile wie Tor- und Türelemente sollen gesichert und später behutsam in den Neubau integriert werden. Entwurfsprämissen sind der Erhalt der kleinteiligen Blockrandbebauung durch ablesbare Einzelbaukörper in Giebelstellung und niedrigere Verbindungsbauwerke bei Erhalt der historischen Gebäudefluchten sowie eine bedarfsgerechte Neuordnung der inneren und äußeren Erschließung.
Die Neubebauung orientiert sich an den vorhandenen First- bzw. Traufhöhen. Ein zusätzlicher notwendiger Treppenraum mit rollstuhlgerechtem Personenaufzug ermöglicht die barrierefreie Erschließung sämtlicher Ebenen des Gesamtobjektes.
Zwei vom Erdgeschoss zugängliche Innenhöfe (Patio) dienen der ausreichenden Belichtung sämtlicher Wohnräume und ermöglichen einen geschützten Aufenthalt der Bewohner sowie der Tagesgäste der Senioreneinrichtung im Freien.
Alle Wohnungen beider Varianten werden mit rollstuhlgerechten Nasszellen ausgestattet. Gemeinschaftlich genutzte Bereiche der Heilpädagogischen Pflege, des Tagesbereiches für Senioren und der Begegnungsstätte/Bürgercafé befinden sich im Erdgeschoss. Die Wohnungen in den Obergeschossen sind durch vertikale Erschließungen (notwendige Treppen) und horizontale Verkehrswege (notwendige Flure) von den gemeinschaftlichen Flächen abgegrenzt.
Die notwendigen Flure bzw. die von allen Bewohnern nutzbare Dachterrasse verbinden Bestandsgebäude und Neubau auf allen drei Ebenen.
Bilder: Wettbewerb Teilhabezentrum Apolda







Die RJ Architekten UG (haftungsbeschränkt) wurde im Oktober 2025 neu gegründet. Sie führt die Tätigkeit des früheren RJ Planungsbüros in veränderter Gesellschaftsform fort, ist jedoch nicht deren Rechtsnachfolgerin.
Die fachliche Expertise und langjährige Erfahrung liegen bei denselben Fachplanern, sodass frühere Referenzen des RJ Planungsbüros weiterhin die Kompetenz und das Leistungsspektrum des heutigen Teams widerspiegeln.

